Navigation ein-/ausblenden
Home
>
Büro
Projekte
>
Wohnbauten
>
Gewerbebauten
>
News
>
Kontakt
>
Datenschutz
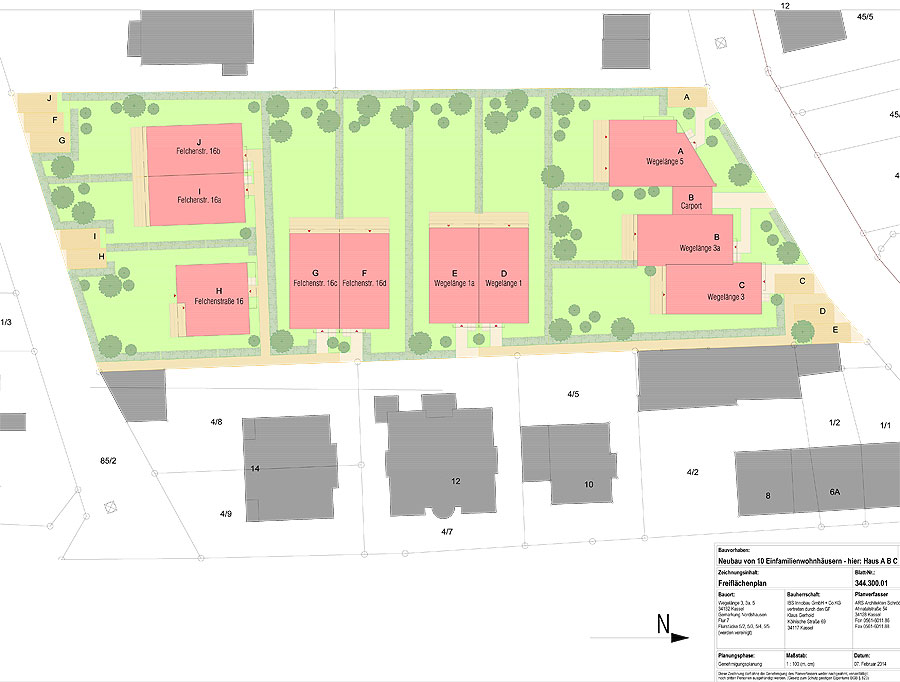
W8 - Wohnanlage Wegelänge
Zurück zur Übersicht
W8
Vergrößerte Ansicht
W8
Vergrößerte Ansicht
W8
Vergrößerte Ansicht
W8
Vergrößerte Ansicht
W8
Vergrößerte Ansicht